¤¢¤ê¤¬¤È¤¦ÉÔÆ°»º
TEL 089-907-8700
 
ʪ·ï¾ÜºÙ
 
  6000Ëü±ß°Ê²¼¤Î°ìÅïÇä¤êʪ·ïÆÃ½¸

¾¾»³»Ô¤ÎÇä¥Þ¥ó¥·¥ç¥ó¡¦Çä¥Ó¥ë¡¦Ç䥢¥Ñ¡¼¥È¤Ç6000Ëü±ß°Ê²¼¤Î¼ý±×°ìÅïÇä¤ê¤òÆÃ½¸¤·¤Þ¤·¤¿¡ª
   
     
   
 
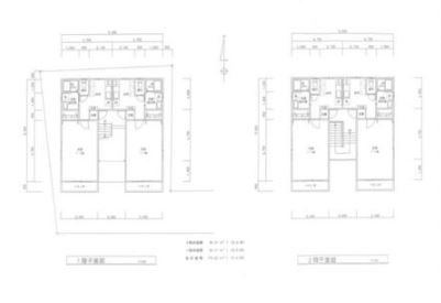
¼ïÊÌ °ìÅïÇä¤ê ʪ·ï¥³¡¼¥É D01357
 


 

 

 
 
 
½êºßÃÏ ¾¾»³»ÔÆîºØ±¡Ä® ·ú¥Ú¥¤Î¨¡Ê¡ó¡Ë 60
²Á³Ê¡ÊËü±ß¡Ë 2,740 ÍÆÀÑΨ¡Ê¡ó¡Ë 200
¸òÄÌ ÅÅ¡¡ÅÚµïÅÄ¡¡ÅÌ20 ÀßÈ÷ ¾å²¼¿åÆ»¡¡Åŵ¤¡¡¥×¥í¥Ñ¥ó¥¬¥¹
ÅÚÃÏÌÌÀÑ¡Ê­Ö¡Ë 340.94¡¡(103.13ÄÚ) Ãó¼Ö¾ì 7Âæ
·úʪÌÌÀÑ¡Ê­Ö¡Ë 145.92¡¡(44.14ÄÚ) ÀÜÆ» Å즡¡Éý°÷3£í¡¡ÀÜÌÌ12£í
¹½Â¤ ÌÚ¤ 2³¬·ú ¸½¶· ÄÂÂßÃæ
ÃÛǯ·îÆü Ê¿À® 15 Ç¯ 05 ·î ¾®³Ø¹»¶è  
Íø²ó¤ê¡Ê¡ó¡Ë   Ãæ³Ø¹»¶è  
ÃÏÌÜ ÂðÃÏ ¼è°úÂÖÍÍ °ìÈÌÇÞ²ð
ÅÔ»Ô·×²è »Ô³¹²½¶è°è ÃÏ¿Þ(URL) ¢¨£±  
ÍÑÅÓÃÏ°è °ì¼ï½»µï È÷¹Í ¡ö1K¡ß4¸Í
¡öËþ¼¼»þÁÛÄê²ÈÄ¡¡195.6Ëü±ß/ǯ
  ¢¨£±¡Äʪ·ï¤Ë¤è¤Ã¤Æ¤Ï¿¾¯¸íº¹¤¬À¸¤¸¤Þ¤¹¡£
 
 
ʪ·ï¼Ì¿¿
 
 
 
 


   
 


 
 


   
 


 
 


   
 


 
 
   
 
 
ʪ·ïõ¤·¤ò¤â¤Ã¤È³Ú¤·¤ß¤¿¤¤Êý¤Ø
¤¢¤Ê¤¿¤Î²È¤¬¸«¤Ä¤«¤ë¡ª¡Ö¤¢¤ê¤¬¤È¤¦ÉÔÆ°»º¡×¤Î¥Û¡¼¥à¥Ú¡¼¥¸¤Ç¤­¤Ã¤È¸«¤Ä¤«¤ë¡ª¡ª
¡É¤¹¤Ù¤Æ¤Ï¤¢¤Ê¤¿¤ÎÌ´¤ò¤«¤Ê¤¨¤ë¤¿¤á¤Ë¡É

¤ªµÒÍͤΤªÃµ¤·¤Îʪ·ï¤¬¸«¤Ä¤«¤ë¤è¤¦¤Ë¡¢¤Þ¤À¤Þ¤ÀÂô»³¤Îʪ·ï¤ò¤´ÍѰդ·¤Æ¤ª¤ê¤Þ¤¹¡ª
¤¼¤Ò¿§¡¹¤ª»î¤·¤¯¤À¤µ¤¤¡ª¤­¤Ã¤È¤ªÃµ¤·¤Îʪ·ï¤¬¸«¤Ä¤«¤ê¤Þ¤¹¢ö

¢£¤â¤Ã¤È¾Ü¤·¤¯¡ªÌó4000ʪ·ï¤ÎÃæ¤«¤éʪ·ï¤òõ¤¹Êý¡ª¢£

¢­¢­¢­¢­¢­

¡ú¡ùÁª¤Ó¤ËÁª¤ÓÈ´¤¤¤¿¡ÖÆÃÁªÊª·ï¡×¡ù¡ú
¡ÚÅÚÃϡۡ¡¡Ú°ì¸Í·ú¤Æ¡Û¡¡¡Ú¥Þ¥ó¥·¥ç¥ó¡Û¡¡¡Ú°ìÅïÇä¤ê¡Û¡¡¡Ú¤½¤Î¾¡Û

¢­¢­¢­¢­¢­

¹­¹ð¤È¤âϢư¤·¤Æ¤Þ¤¹¡ª¹­¹ð·ÇºÜʪ·ï¡ª

¤â¤Ã¤ÈÉÔÆ°»º¤Î¤³¤È¤Ë¤Ä¤¤¤ÆÃΤꤿ¤¤¤Ê¤¡Ž¥Ž¥Ž¥¡£
¤½¤ó¤Ê¤ªµÒÍͤ˥ԥ忥ꡪÉÔÆ°»º¤Ë´Ø¤¹¤ë¾ðÊó¤¬ËþºÜ¡ù¡ù
¡Ö¤¢¤ê¤¬¤È¤¦¥Þ¥¬¥¸¥ó¡×

¢­¢­¢­¢­¢­

¤â¤Ã¤È¼ÒŤΤ³¤È¤Ë¤Ä¤¤¤ÆÃΤꤿ¤¤¤Ê¤¡Ž¥Ž¥Ž¥¡£
¤½¤ó¤Ê¥Þ¥Ë¥¢¥Ã¥¯¤Ê¤ªµÒÍͤ˥ԥ忥ꡪ¼ÒŤÎÇ®¤¤ÁÛ¤¤¤¬¤³¤³¤Ë¤¢¤ê¤Þ¤¹¡ª
¡ù¡ú¼ÒŤΤ¦¤ó¤Á¤¯¡ú¡ù

¢­¢­¢­¢­¢­

µ¤¤Ë¤Ê¤ëʪ·ï¤¬¤¢¤ë¤Ê¤¡¡£
¤Þ¤º¤ÏÁêÃ̤ˤΤäƤâ¤é¤ª¤¦¤«¤Ê¡£
¤ªµÒÍͤξдé¤Î¤¿¤á¤ËÁ´ÎϤǤª¼êÅÁ¤¤¤µ¤»¤Æ¤¤¤¿¤À¤­¤Þ¤¹¡ª¡ª
¡Ö¤¹¤Ù¤Æ¤Ï¤¢¤Ê¤¿¤Î¤¢¤ê¤¬¤È¤¦¤Î¤¿¤á¤Ë¡×
 
   
 
 
¡Ãʪ·ï¸¡º÷¡ÃÇä¤ê¤¿¤¤Êý¡ÃÇ㤤¤¿¤¤Êý¡Ã²ñ°÷Í͸þ¤±¾ðÊó¡Ã²ñ¼Ò³µÍסøĿ;ðÊó¤Î¼è°·¤¤¤Ë¤Ä¤¤¤Æ¡Ã¤ªÌä¹ç¤»¡Ã
 
Copyright(c)arigatou-fudousan All right reserved.